省心挑好房,先上幸福里
立即打开
VR
图片
1/20
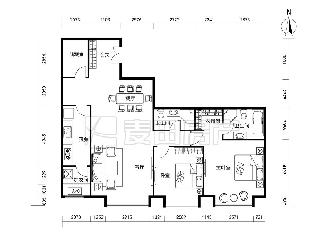
2室1厅 富力爱丁堡公馆
反馈
有电梯
临近地铁
临近学校
1495万
售价
2室1厅
房型
153平
建筑面积
单价
97712元/平
挂牌
2023-07-11
楼层
低楼层/共22层
朝向
南
装修
精装修
电梯
有电梯
楼型
板楼
类型
住宅
权属
商品房
年代
2006年
小区
富力爱丁堡公馆(朝阳-东大桥)
点评
所在小区2位业主分享真实入住感受
提示
签订正式租房/购房合同前切勿支付任何费用
麦田龙湾店官方提供
关注房源动态,掌握一手信息
关注动态
周边配套
详情
位置
白家庄路1号
交通
教育
医疗
生活
休闲
团结湖(东三环北路首北兆龙饭店东北侧约40米)
502m
呼家楼(呼家楼地铁站)
713m
工人体育场(地铁17号线北段;地铁3号线)
912m
富力爱丁堡公馆
详情
小区行情周报
详情
持平
咨询小区历史成交价
去咨询
小区实勘测评
详情
8.5
综合评分“良好”
配套价值
9.5
交易价值
8.0
区域价值
8.8
产品价值
7.5
1、该小区卫生环境做得比较到位,绿植养护得非常好,公共区域物品摆放整齐,居住环境很舒适。 2、该小区基础设施完善,小区内有儿童游乐设施、乒乓球台、篮球架和健身器材等,附近还有团结湖公园,可以满足居民基本的休闲需求。 3、该小区位于三里屯时尚购物街附近,周边商业配套齐全,医疗资源丰富。 4、该小区周边交通发达,地铁和公交线路都比较多,城市主次干道交织,不管是公共交通还是自驾都很方便。
免责声明:房源所示图片及其他信息仅供参考,购房时请以房本信息为准。图片、VR等房屋信息由房源发布机构发布,如有侵权等情况,请在房源展示图片右下侧点击“反馈”联系幸福里平台处理。幸福里平台禁止经纪人/咨询师“返佣返现”,请您警惕。
反馈