省心挑好房,先上幸福里
立即打开
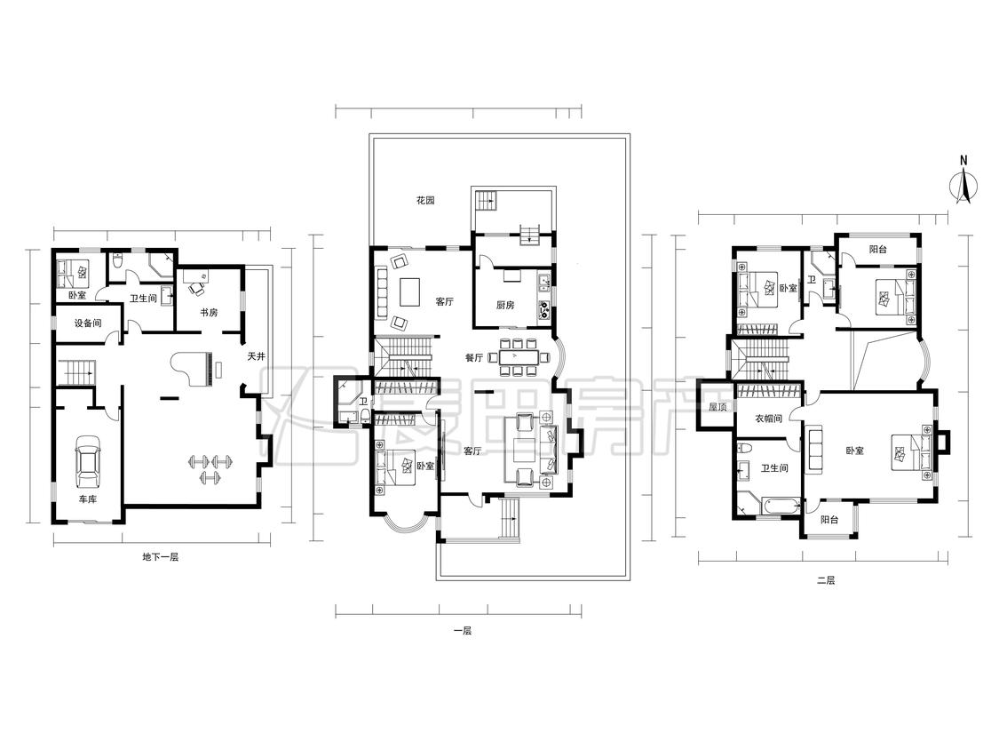
VR
图片
1/23

周边配套

详情
位置
冷泉路以西
交通
教育
医疗
生活
休闲
屯佃大桥(346路;518路;651路)
360m
冷泉公交场站(328路)
1.5km

小区行情周报

详情
持平
咨询小区历史成交价
去咨询
免责声明:房源所示图片及其他信息仅供参考,购房时请以房本信息为准。图片、VR等房屋信息由房源发布机构发布,如有侵权等情况,请在房源展示图片右下侧点击“反馈”联系幸福里平台处理。幸福里平台禁止经纪人/咨询师“返佣返现”,请您警惕。反馈