省心挑好房,先上幸福里
立即打开
VR
图片
1/21
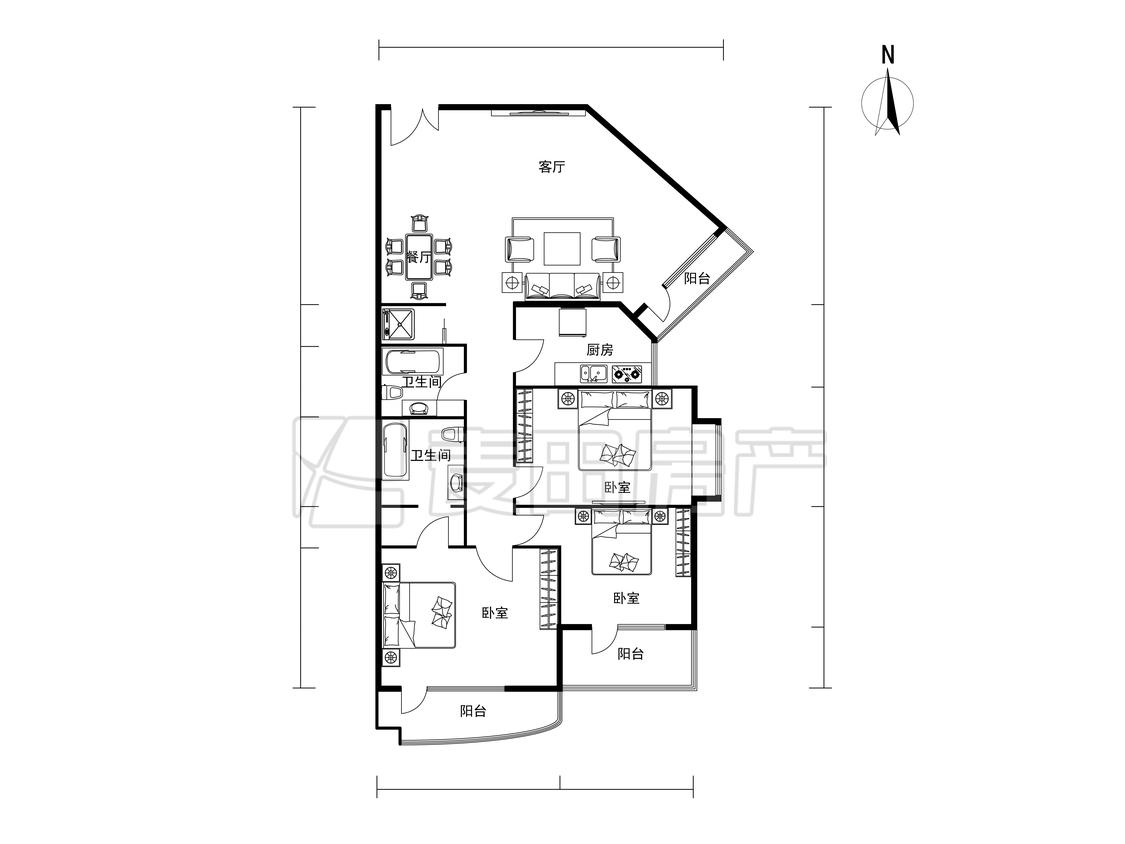
3室2厅 风林绿洲
反馈
有电梯
临近地铁
1430万
售价
3室2厅
房型
171平
建筑面积
单价
83625元/平
挂牌
2023-03-28
楼层
高楼层/共33层
朝向
东南
装修
简装修
电梯
有电梯
楼型
板塔结合
类型
住宅
权属
商品房
年代
2002年
小区
风林绿洲(朝阳-南沙滩)
点评
所在小区8位业主分享真实入住感受
提示
签订正式租房/购房合同前切勿支付任何费用
麦田龙湾店官方提供
关注房源动态,掌握一手信息
关注动态
周边配套
详情
位置
大屯路
交通
教育
医疗
生活
休闲
奥林匹克公园(8号线)
761m
北沙滩(清华东路小学北侧)
1.4km
安立路(15号线)
2.0km
风林绿洲
详情
小区行情周报
详情
持平
咨询小区历史成交价
去咨询
小区实勘测评
详情
8.2
综合评分“良好”
区域价值
7.3
产品价值
8.5
配套价值
8.8
交易价值
8.5
1.小区周边配套成熟,地段价值优越。隶属于南沙滩商圈,商场、学校、医院、休闲场所遍布,居民基本需求和高品质生活追求都能得到满足。 2.交通条件便利,出行快捷。小区2公里范围内包括8号线、15号线两条地铁,公交站步行300m就可以到达。 3.社区生活氛围浓厚。社区居住人群以附近工作员工、生意人为主,群体人文素质较高,社区内充满生活气息。 4.环境优美,空气清新。微观来看,小区绿化率高,树木多。宏观来看,多个大型公园在旁,生态环境优良。是居民休闲娱乐的好去处。
免责声明:房源所示图片及其他信息仅供参考,购房时请以房本信息为准。图片、VR等房屋信息由房源发布机构发布,如有侵权等情况,请在房源展示图片右下侧点击“反馈”联系幸福里平台处理。幸福里平台禁止经纪人/咨询师“返佣返现”,请您警惕。
反馈