省心挑好房,先上幸福里
立即打开
VR
图片
1/22
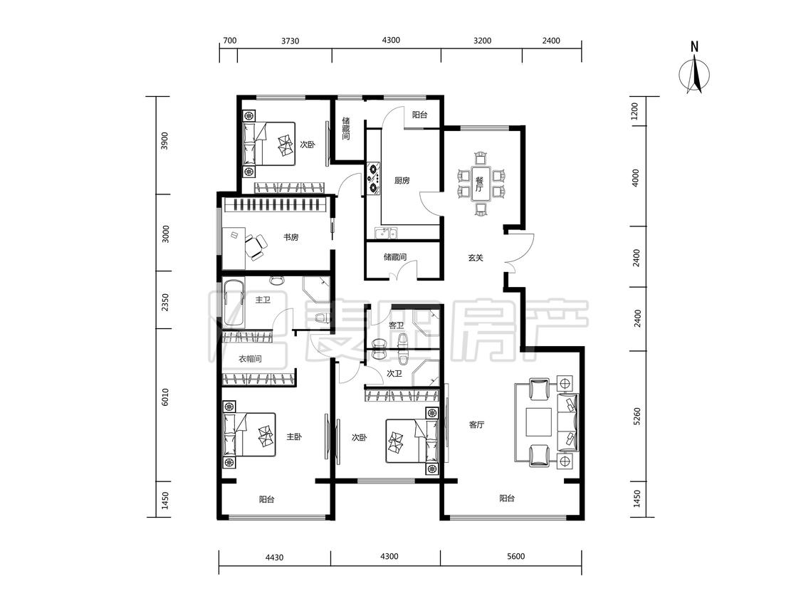
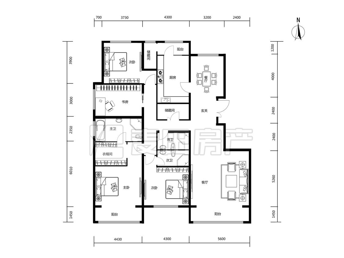
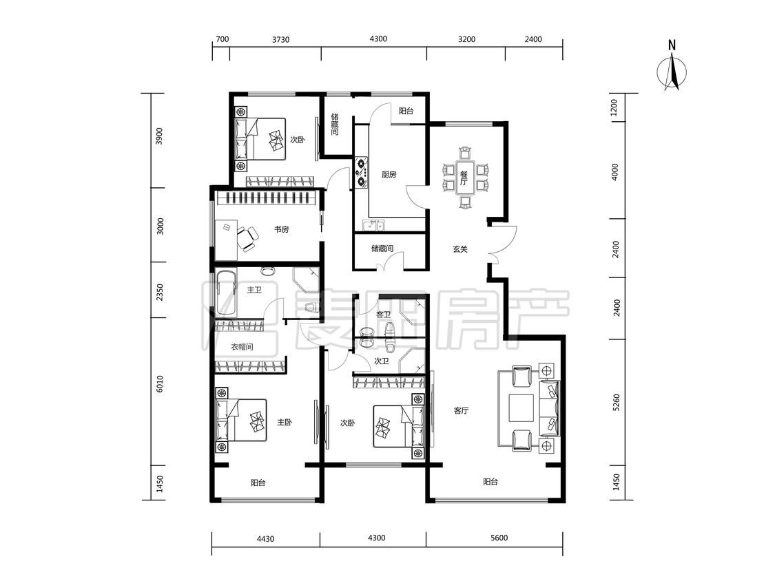
4室2厅 泛海国际(碧海园)
反馈
南北通透
有电梯
满两年
临近学校
2510万
售价
4室2厅
房型
246.16平
建筑面积
单价
101966元/平
挂牌
2023-03-25
楼层
高楼层/共21层
朝向
南北
装修
精装修
电梯
有电梯
楼型
板楼
类型
住宅
权属
商品房
年代
2008年
小区
泛海国际(碧海园)(朝阳-朝阳公园东)
点评
所在小区7位业主分享真实入住感受
提示
签订正式租房/购房合同前切勿支付任何费用
麦田官方提供
关注房源动态,掌握一手信息
关注动态
周边配套
详情
位置
姚家园路97号
交通
教育
医疗
生活
休闲
石佛营(3号线)
252m
北京朝阳站(3号线)
1.2km
罗森(十里堡地铁站)(朝阳北路129号院2号楼1层107-109)
1.5km
泛海国际(碧海园)
详情
小区行情周报
详情
持平
咨询小区历史成交价
去咨询
小区实勘测评
详情
7.7
综合评分“良好”
产品价值
7.5
配套价值
7.6
交易价值
8.0
区域价值
7.6
1、小区绿化面积较大,绿化率较高,环境优美,小区内部较为安静,居住体验感较好。 2、社区布局设计合理,楼间距较大,采光条件及通风条件较好。 3、小区物业管理到位,较为负责,从垃圾分类到园林养护,工作细致。 4、纯商品房社区,建筑品质良好,板楼建筑户型方正。
免责声明:房源所示图片及其他信息仅供参考,购房时请以房本信息为准。图片、VR等房屋信息由房源发布机构发布,如有侵权等情况,请在房源展示图片右下侧点击“反馈”联系幸福里平台处理。幸福里平台禁止经纪人/咨询师“返佣返现”,请您警惕。
反馈