选好房,就上幸福里找房
立即打开
1/6

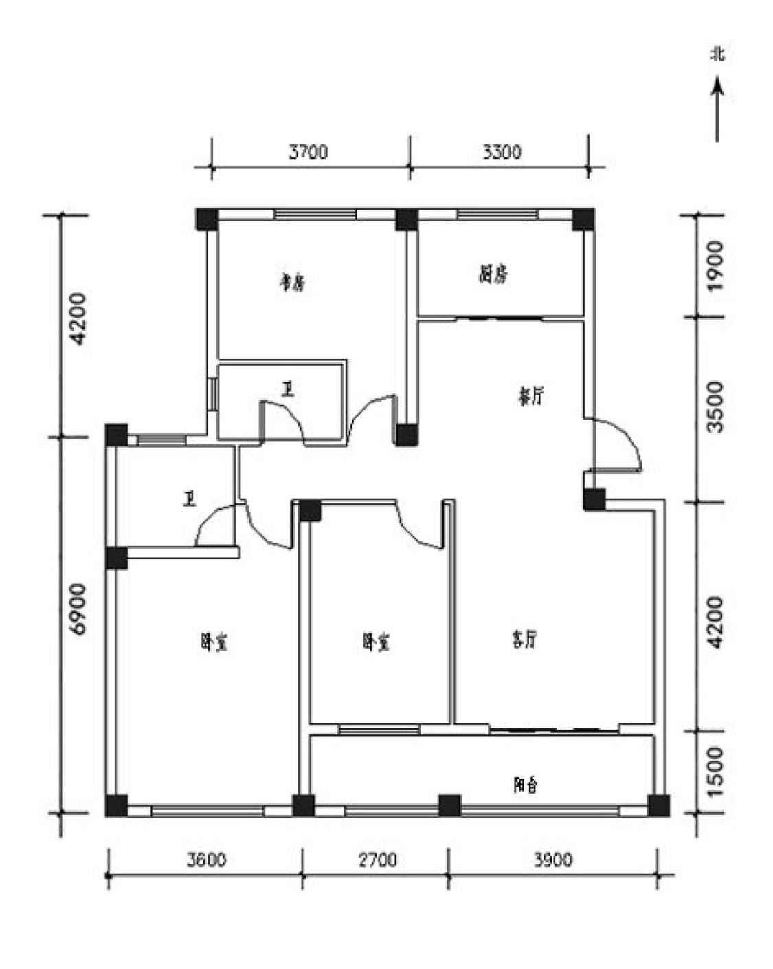
3室2厅 府厚名门

唯一住房
南北通透
满两年
56万
售价
3室2厅
房型
109平
建筑面积
恒安房产官方提供

周边配套

详情
位置
府后街
交通
教育
医疗
生活
休闲
文泽园(游666路;贾汪环城公交东行;贾汪环城公交西行)
1.4km
欧蓓莎(27路)
1.9km
新工区(969路)
2.0km

小区行情周报

详情
持平
咨询小区历史成交价
去咨询
免责声明:房源所示图片及其他信息仅供参考,购房时请以房本信息为准。图片、VR等房屋信息由房源发布机构发布,如有侵权等情况,请在房源展示图片右下侧点击“反馈”联系幸福里找房平台处理。幸福里找房平台禁止经纪人/咨询师“返佣返现”,请您警惕。反馈