选好房,就上幸福里找房
立即打开
VR
图片
1/42
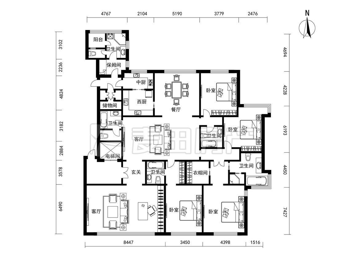
4室3厅 合生霄云路8号
反馈
南北通透
临近地铁
临近学校
绿化率高
5800万
售价
4室3厅
房型
450平
建筑面积
单价
128888元/平
挂牌
2022-12-23
楼层
高楼层/共29层
朝向
南北
装修
精装修
电梯
无电梯
类型
住宅
权属
商品房
年代
2013年
小区
合生霄云路8号(朝阳-三元桥)
点评
所在小区4位业主分享真实入住感受
提示
签订正式租房/购房合同前切勿支付任何费用
麦田房产店官方提供
关注房源动态,掌握一手信息
关注动态
周边配套
详情
位置
霄云路8号
交通
教育
医疗
生活
休闲
芳园里(在建12号线)
871m
将台西[地铁站](12号线)
961m
东风北桥(14号线)
1.1km
合生霄云路8号
详情
小区行情周报
详情
持平
咨询小区历史成交价
去咨询
免责声明:房源所示图片及其他信息仅供参考,购房时请以房本信息为准。图片、VR等房屋信息由房源发布机构发布,如有侵权等情况,请在房源展示图片右下侧点击“反馈”联系幸福里找房平台处理。幸福里找房平台禁止经纪人/咨询师“返佣返现”,请您警惕。
反馈