省心挑好房,先上幸福里
立即打开
1/12
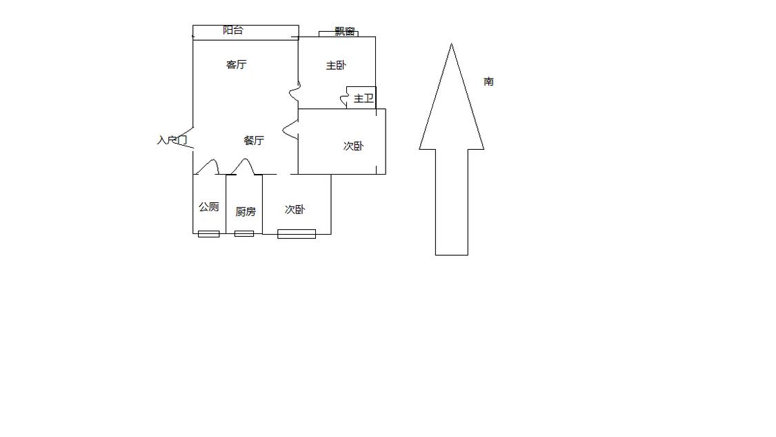
3室2厅 香樟苑(西苑)
反馈
品质改善
南北通透
有电梯
满五年
52万
售价
3室2厅
房型
135平
建筑面积
单价
3851元/平
挂牌
2022-11-15
楼层
低楼层/共20层
朝向
南北
装修
精装修
电梯
有电梯
楼型
板楼
类型
住宅
权属
商品房
年代
2013年
小区
香樟苑(西苑)(固始-固始)
提示
签订正式租房/购房合同前切勿支付任何费用
固始宜居房产官方提供
关注房源动态,掌握一手信息
关注动态
周边配套
详情
位置
王审知大道与黄河路交叉口向南50米西北方向180米
交通
教育
医疗
生活
休闲
和谐家园(固始2路)
667m
畜牧局站(固始302路)
1.1km
台商工业园(固始9路内环;固始9路外环)
1.4km
香樟苑(西苑)
详情
小区行情周报
详情
持平
咨询小区历史成交价
去咨询
免责声明:房源所示图片及其他信息仅供参考,购房时请以房本信息为准。图片、VR等房屋信息由房源发布机构发布,如有侵权等情况,请在房源展示图片右下侧点击“反馈”联系幸福里平台处理。幸福里平台禁止经纪人/咨询师“返佣返现”,请您警惕。
反馈