选好房,就上幸福里找房
立即打开
1/10
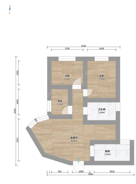
3室2厅 温富大厦
反馈
有电梯
临近学校
122万
售价
3室2厅
房型
101平
建筑面积
单价
12079元/平
挂牌
2022-11-05
楼层
中楼层/共28层
朝向
西
装修
简装修
电梯
有电梯
类型
住宅
权属
商品房
小区
温富大厦(鹿城-水心)
提示
签订正式租房/购房合同前切勿支付任何费用
21世纪不动产官方提供
关注房源动态,掌握一手信息
关注动态
周边配套
详情
位置
人民西路173号
交通
教育
医疗
生活
休闲
坦前(103路环线;103路至茶山;108路;108路加;111路;113路;115路;152路;31路;59路;64路;87路;B113路;K103路)
551m
市中医院大士门院区(152路)
580m
鹿城大厦公寓(大南街道人民中路169号鹿城大厦公寓401室)
658m
温富大厦
详情
免责声明:房源所示图片及其他信息仅供参考,购房时请以房本信息为准。图片、VR等房屋信息由房源发布机构发布,如有侵权等情况,请在房源展示图片右下侧点击“反馈”联系幸福里找房平台处理。幸福里找房平台禁止经纪人/咨询师“返佣返现”,请您警惕。
反馈