省心挑好房,先上幸福里
立即打开
VR
图片
1/23
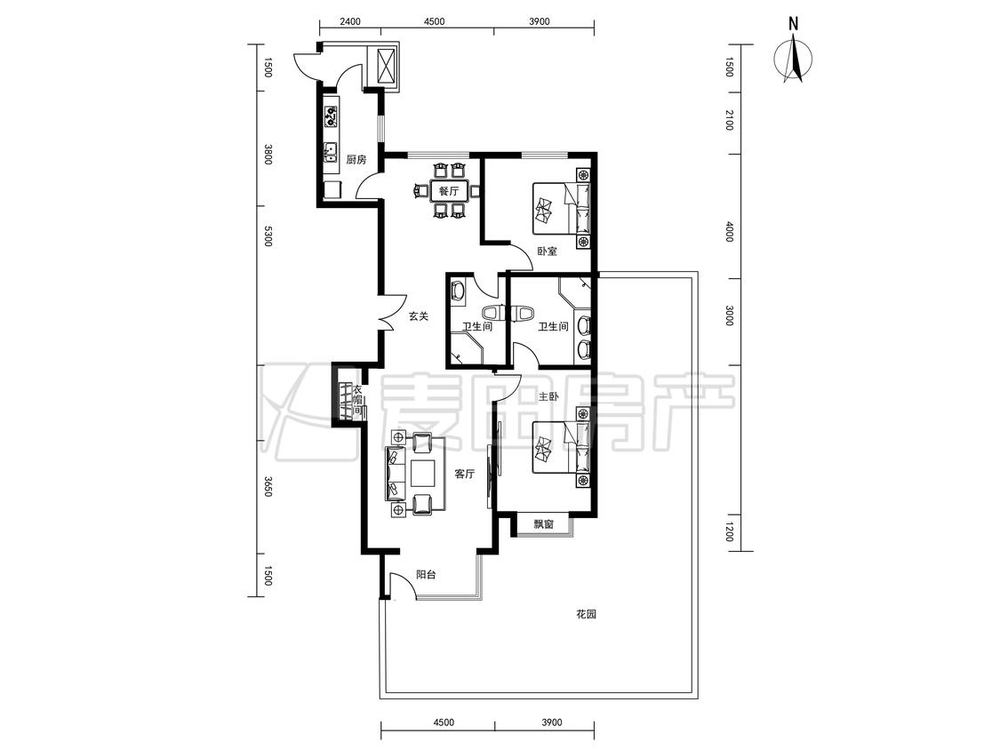
2室2厅 太阳公元(南区)
反馈
南北通透
有电梯
满五年
临近地铁
1750万
售价
2室2厅
房型
144.09平
建筑面积
单价
121451元/平
挂牌
2022-10-16
楼层
低楼层/共29层
朝向
南北
装修
精装修
电梯
有电梯
楼型
板楼
类型
住宅
权属
商品房
年代
2012年
小区
太阳公元(南区)(朝阳-太阳宫)
点评
所在小区2位业主分享真实入住感受
提示
签订正式租房/购房合同前切勿支付任何费用
麦田龙湾店官方提供
关注房源动态,掌握一手信息
关注动态
周边配套
详情
位置
太阳宫二街1号
交通
教育
医疗
生活
休闲
芍药居(10号线)
518m
太阳宫(太阳宫中路凯德MALL太阳宫店北侧约30米)
870m
西坝河(西坝河南路1号一层)
1.4km
太阳公元(南区)
详情
小区行情周报
详情
持平
咨询小区历史成交价
去咨询
免责声明:房源所示图片及其他信息仅供参考,购房时请以房本信息为准。图片、VR等房屋信息由房源发布机构发布,如有侵权等情况,请在房源展示图片右下侧点击“反馈”联系幸福里平台处理。幸福里平台禁止经纪人/咨询师“返佣返现”,请您警惕。
反馈