选好房,就上幸福里找房
立即打开
VR
图片
1/19
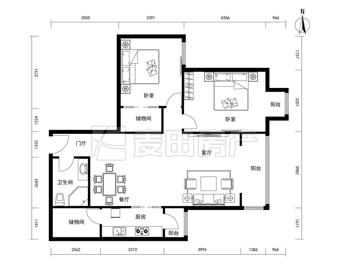
2室2厅 嘉铭桐城(C区)
反馈
有电梯
满两年
临近地铁
临近学校
710万
售价
2室2厅
房型
111.31平
建筑面积
单价
63785元/平
挂牌
2022-09-28
楼层
低楼层/共28层
朝向
东
装修
精装修
电梯
有电梯
楼型
板塔结合
类型
住宅
权属
商品房
年代
2004年
小区
嘉铭桐城(C区)(朝阳-亚运村小营)
点评
所在小区6位业主分享真实入住感受
提示
签订正式租房/购房合同前切勿支付任何费用
麦田房产店官方提供
关注房源动态,掌握一手信息
关注动态
周边配套
详情
位置
北苑路86号
交通
教育
医疗
生活
休闲
关庄(15号线)
605m
大屯路东(5号线)
693m
安立路(15号线)
1.5km
嘉铭桐城(C区)
详情
小区行情周报
详情
持平
咨询小区历史成交价
去咨询
小区实勘测评
详情
8.2
综合评分“良好”
区域价值
7.5
产品价值
8.6
配套价值
8.5
交易价值
8.3
1、周边配套相对完善,学校、医院、休闲场所遍布,居民基本需求和高品质生活追求都能得到满足。 2、交通便利,公交站地铁站步行可达,出行通勤便利。 3、品质感受好,道路规划好,内部车辆有序停放,车辆行人进出互不干扰。整体观感不错。 4、小区绿化高,环境优美,空气清新。微观来看,小区设施齐全。宏观来看,多个大型森林公园环绕,生态环境优良。是居民休闲娱乐的好去处。
免责声明:房源所示图片及其他信息仅供参考,购房时请以房本信息为准。图片、VR等房屋信息由房源发布机构发布,如有侵权等情况,请在房源展示图片右下侧点击“反馈”联系幸福里找房平台处理。幸福里找房平台禁止经纪人/咨询师“返佣返现”,请您警惕。
反馈