选好房,就上幸福里找房
立即打开
VR
图片
1/10

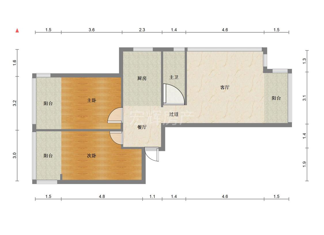
2室2厅 金雁电器厂家属院

1.5万
有电梯
临近地铁
63.5万
售价
2室2厅
房型
97.11平
建筑面积
兰州宏辉官方提供

周边配套

详情
位置
大雁滩560-561号
交通
教育
医疗
生活
休闲
雁滩什字(规划4号线)
535m
张苏滩(2号线)
771m
雁滩路(规划4号线;规划5号线)
871m
免责声明:房源所示图片及其他信息仅供参考,购房时请以房本信息为准。图片、VR等房屋信息由房源发布机构发布,如有侵权等情况,请在房源展示图片右下侧点击“反馈”联系幸福里找房平台处理。幸福里找房平台禁止经纪人/咨询师“返佣返现”,请您警惕。反馈