省心挑好房,先上幸福里
立即打开
VR
图片
1/15
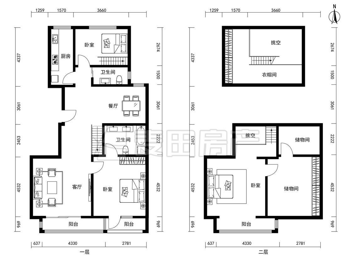
2室2厅 金隅凤麟洲(西区)
反馈
唯一住房
南北通透
有电梯
满五年
790万
售价
2室2厅
房型
120.93平
建筑面积
单价
65327元/平
挂牌
2022-02-12
楼层
高楼层/共10层
朝向
南北
装修
精装修
电梯
有电梯
楼型
板楼
类型
住宅
权属
商品房
年代
2008年
小区
金隅凤麟洲(西区)(朝阳-朝阳公园东)
提示
签订正式租房/购房合同前切勿支付任何费用
麦田龙湾店官方提供
关注房源动态,掌握一手信息
关注动态
周边配套
详情
位置
姚家园西里9号
交通
教育
医疗
生活
休闲
北京朝阳站(3号线)
501m
石佛营(3号线)
1.3km
体育中心(朝阳体育中心西路朝阳体育中心)
1.5km
金隅凤麟洲(西区)
详情
小区行情周报
详情
持平
咨询小区历史成交价
去咨询
免责声明:房源所示图片及其他信息仅供参考,购房时请以房本信息为准。图片、VR等房屋信息由房源发布机构发布,如有侵权等情况,请在房源展示图片右下侧点击“反馈”联系幸福里平台处理。幸福里平台禁止经纪人/咨询师“返佣返现”,请您警惕。
反馈