选好房,就上幸福里找房
立即打开
1/14
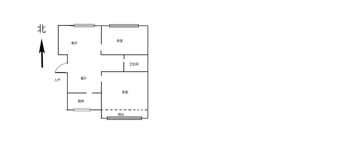
2室2厅 星苑小区
反馈
满五年
临近学校
50万
售价
2室2厅
房型
85.08平
建筑面积
单价
5876元/平
挂牌
2022-01-02
楼层
高楼层/共6层
朝向
南
装修
简装修
电梯
无电梯
类型
住宅
权属
商品房
小区
星苑小区(宛城-宛城城区)
提示
签订正式租房/购房合同前切勿支付任何费用
大象找房官方提供
关注房源动态,掌握一手信息
关注动态
周边配套
详情
位置
联合街
交通
教育
医疗
生活
休闲
新华路菜市街口(YZ3路;Z3路)
352m
新华路仲景路口(19路/K19路;34路/K34路;6路/K6路)
741m
仲景路医圣祠囗(1路/K1路)
874m
星苑小区
详情
小区行情周报
详情
持平
咨询小区历史成交价
去咨询
免责声明:房源所示图片及其他信息仅供参考,购房时请以房本信息为准。图片、VR等房屋信息由房源发布机构发布,如有侵权等情况,请在房源展示图片右下侧点击“反馈”联系幸福里找房平台处理。幸福里找房平台禁止经纪人/咨询师“返佣返现”,请您警惕。
反馈