选好房,就上幸福里找房
立即打开
VR
图片
1/24
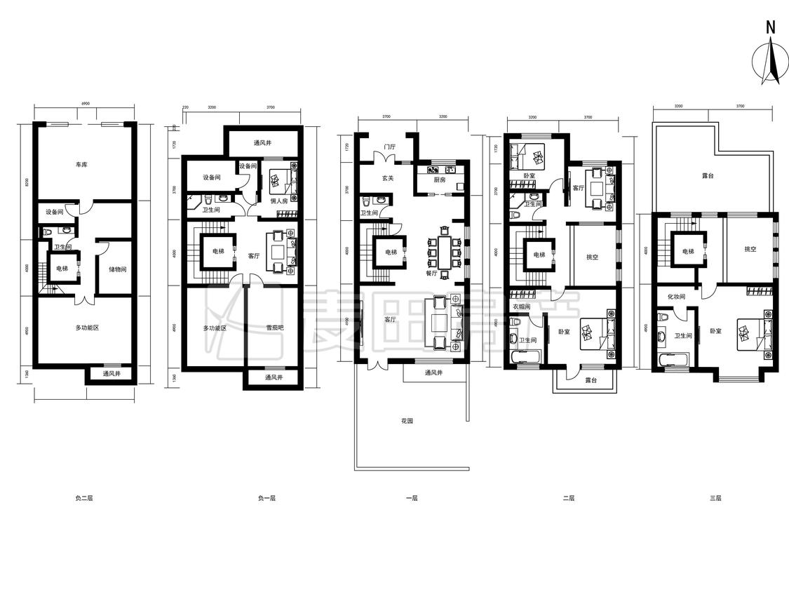
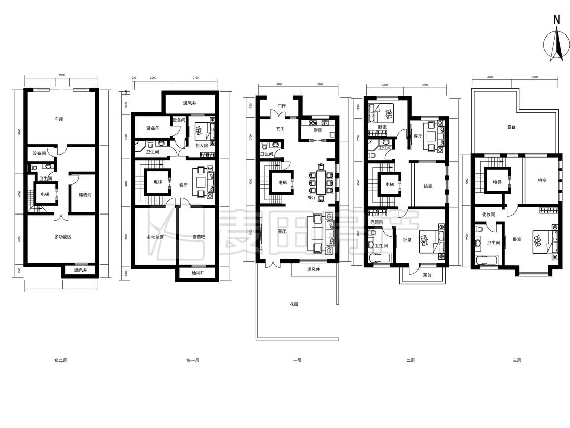
4室2厅 观承别墅
反馈
南北通透
楼龄新
满五年
别墅
1550万
售价
4室2厅
房型
344.46平
建筑面积
单价
44997元/平
挂牌
2021-12-25
楼层
低楼层/共1层
朝向
南北
装修
毛坯
电梯
无电梯
楼型
板楼
类型
别墅
权属
商品房
年代
2017年
小区
观承别墅(顺义-中央别墅区)
点评
所在小区4位业主分享真实入住感受
提示
签订正式租房/购房合同前切勿支付任何费用
麦田房产店官方提供
关注房源动态,掌握一手信息
关注动态
周边配套
详情
位置
京承高速8号出口右转,直行100米过法式大桥即右转,规划六路附近
交通
教育
医疗
生活
休闲
未来科学城北(17号线北段)
2.2km
未来科学城(17号线北段)
2.6km
未来科学城南(在建17号线北段)
2.6km
观承别墅
详情
小区行情周报
详情
持平
咨询小区历史成交价
去咨询
免责声明:房源所示图片及其他信息仅供参考,购房时请以房本信息为准。图片、VR等房屋信息由房源发布机构发布,如有侵权等情况,请在房源展示图片右下侧点击“反馈”联系幸福里找房平台处理。幸福里找房平台禁止经纪人/咨询师“返佣返现”,请您警惕。
反馈