选好房,就上幸福里找房
立即打开
VR
图片
1/13
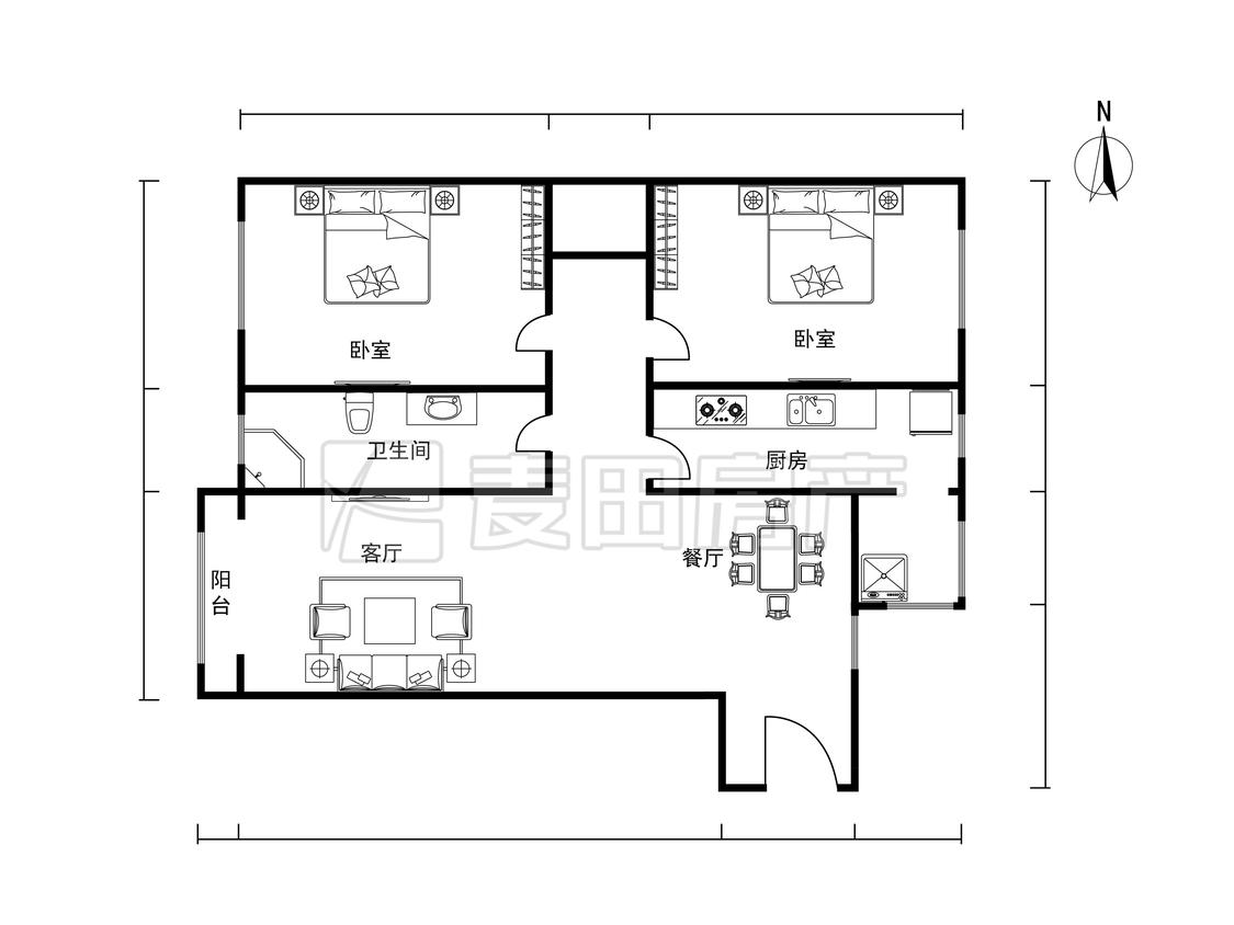
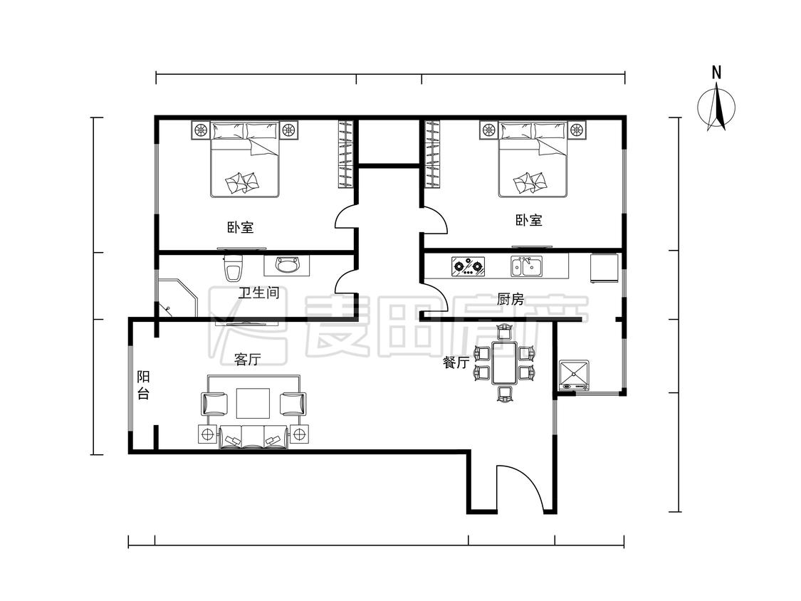
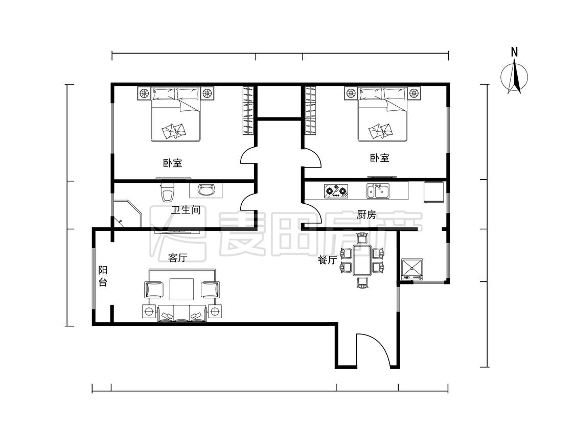
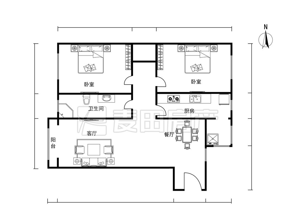
2室1厅 澳林春天(一期)
反馈
降
30.0万
唯一住房
满五年
临近地铁
420万
售价
2室1厅
房型
76平
建筑面积
单价
55263元/平
挂牌
2021-12-22
楼层
高楼层/共6层
朝向
东西
装修
精装修
电梯
无电梯
楼型
板楼
类型
住宅
权属
商品房
年代
2000年
小区
澳林春天(一期)(朝阳-奥林匹克公园)
点评
所在小区11位业主分享真实入住感受
提示
签订正式租房/购房合同前切勿支付任何费用
麦田官方提供
关注房源动态,掌握一手信息
关注动态
周边配套
详情
位置
科荟路
交通
教育
医疗
生活
休闲
林萃桥(8号线)
1.1km
北沙滩(清华东路小学北侧)
1.2km
六道口(学院路弘彧大厦东侧约40米)
1.9km
澳林春天(一期)
详情
小区行情周报
详情
持平
咨询小区历史成交价
去咨询
小区实勘测评
详情
8.1
综合评分“良好”
区域价值
8.3
产品价值
7.9
配套价值
8.1
交易价值
8.0
1、居住品质方面:小区安保严格,小区内绿化覆盖面积大,也禁止居民个人举办大型吵闹活动,居住环境安静,居住舒适度高。 2、建筑品质方面:外立面干净整洁,楼体未出现损坏现象,楼体日常维护及时到位,楼体质量较高。 3、交通方面:小区临近林萃桥地铁8号线、北沙滩地铁15号线,靠近澳林小区公交站、林萃路口北等公交站,交通便利。 4、周围配套方面:分布有医院和药店,还有较多景点,日常生活得以解决;附近有小型商铺和购物广场,可满足不同年龄段购物需要。
免责声明:房源所示图片及其他信息仅供参考,购房时请以房本信息为准。图片、VR等房屋信息由房源发布机构发布,如有侵权等情况,请在房源展示图片右下侧点击“反馈”联系幸福里找房平台处理。幸福里找房平台禁止经纪人/咨询师“返佣返现”,请您警惕。
反馈