选好房,就上幸福里找房
立即打开
VR
图片
1/12
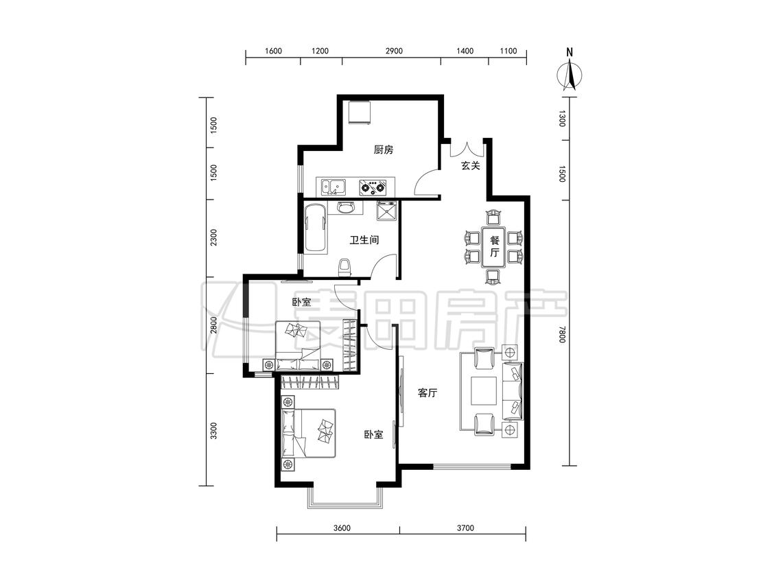
2室1厅 逸翠园
反馈
唯一住房
有电梯
满五年
740万
售价
2室1厅
房型
87.18平
建筑面积
单价
84881元/平
挂牌
2021-12-10
楼层
中楼层/共9层
朝向
西南
装修
精装修
电梯
有电梯
楼型
板楼
类型
住宅
权属
商品房
年代
2006年
小区
逸翠园(朝阳-朝青)
点评
所在小区1位业主分享真实入住感受
提示
签订正式租房/购房合同前切勿支付任何费用
麦田房产店官方提供
关注房源动态,掌握一手信息
关注动态
周边配套
详情
位置
姚家园西里5号院,姚家园东里,姚家园东里5号院
交通
教育
医疗
生活
休闲
体育中心(朝阳体育中心西路朝阳体育中心)
314m
姚家园(3号线)
314m
北京朝阳站(3号线)
1.6km
逸翠园
详情
小区行情周报
详情
持平
咨询小区历史成交价
去咨询
免责声明:房源所示图片及其他信息仅供参考,购房时请以房本信息为准。图片、VR等房屋信息由房源发布机构发布,如有侵权等情况,请在房源展示图片右下侧点击“反馈”联系幸福里找房平台处理。幸福里找房平台禁止经纪人/咨询师“返佣返现”,请您警惕。
反馈