选好房,就上幸福里找房
立即打开
VR
图片
1/24
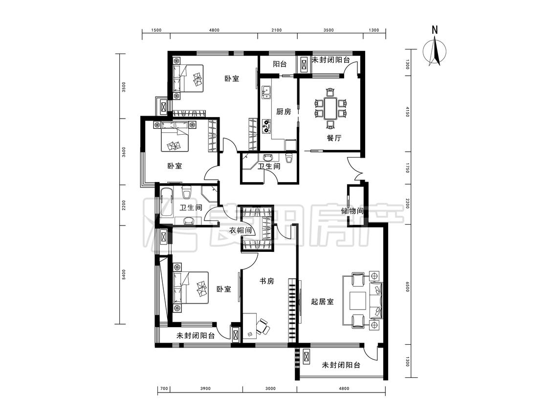
4室2厅 北京香颂(二期)
反馈
唯一住房
有电梯
满五年
临近地铁
1620万
售价
4室2厅
房型
203.58平
建筑面积
单价
79575元/平
挂牌
2021-11-29
楼层
高楼层/共9层
朝向
南西北
装修
精装修
电梯
有电梯
楼型
板楼
类型
住宅
权属
商品房
年代
2007年
小区
北京香颂(二期)(朝阳-望京)
点评
所在小区3位业主分享真实入住感受
提示
签订正式租房/购房合同前切勿支付任何费用
麦田房产店官方提供
关注房源动态,掌握一手信息
关注动态
周边配套
详情
位置
望京西路
交通
教育
医疗
生活
休闲
望京西(15号线)
455m
阜通(14号线)
1.6km
关庄(15号线)
2.1km
北京香颂(二期)
详情
小区行情周报
详情
持平
咨询小区历史成交价
去咨询
免责声明:房源所示图片及其他信息仅供参考,购房时请以房本信息为准。图片、VR等房屋信息由房源发布机构发布,如有侵权等情况,请在房源展示图片右下侧点击“反馈”联系幸福里找房平台处理。幸福里找房平台禁止经纪人/咨询师“返佣返现”,请您警惕。
反馈