省心挑好房,先上幸福里
立即打开
VR
图片
1/12
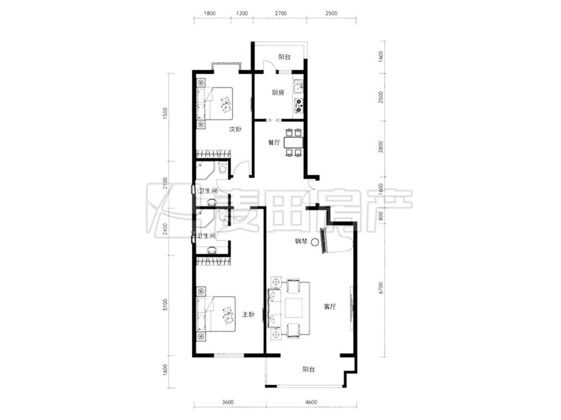
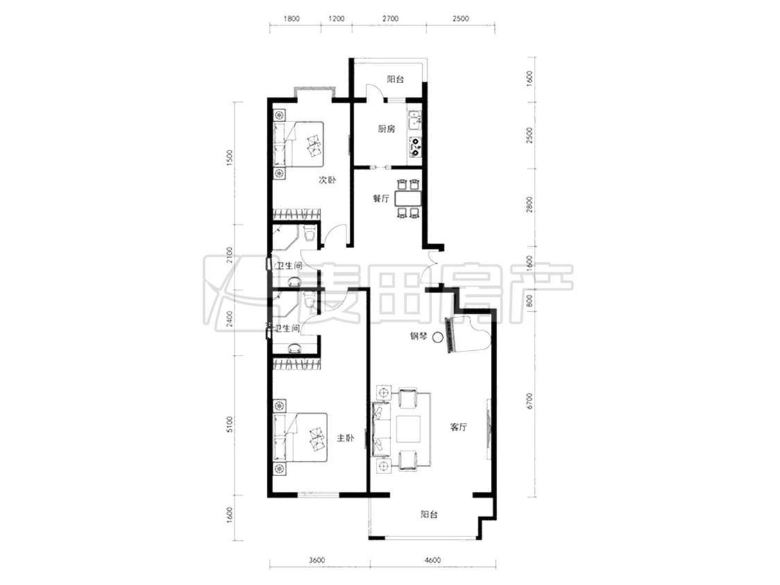
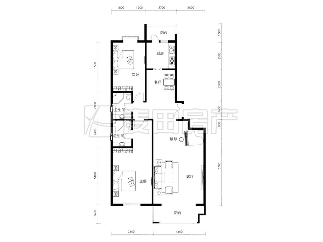
2室2厅 首开知语城
反馈
唯一住房
南北通透
有电梯
满五年
1120万
售价
2室2厅
房型
137.8平
建筑面积
单价
81277元/平
挂牌
2021-10-15
楼层
高楼层/共13层
朝向
南北
装修
精装修
电梯
有电梯
楼型
板楼
类型
住宅
权属
商品房
年代
2008年
小区
首开知语城(朝阳-望京)
提示
签订正式租房/购房合同前切勿支付任何费用
麦田官方提供
关注房源动态,掌握一手信息
关注动态
周边配套
详情
位置
望京西路317号
交通
教育
医疗
生活
休闲
望京西(15号线)
804m
阜通(14号线)
1.1km
东湖渠(14号线)
2.1km
首开知语城
详情
小区行情周报
详情
持平
咨询小区历史成交价
去咨询
免责声明:房源所示图片及其他信息仅供参考,购房时请以房本信息为准。图片、VR等房屋信息由房源发布机构发布,如有侵权等情况,请在房源展示图片右下侧点击“反馈”联系幸福里平台处理。幸福里平台禁止经纪人/咨询师“返佣返现”,请您警惕。
反馈