省心挑好房,先上幸福里
立即打开
VR
图片
1/12

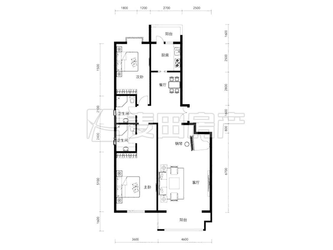
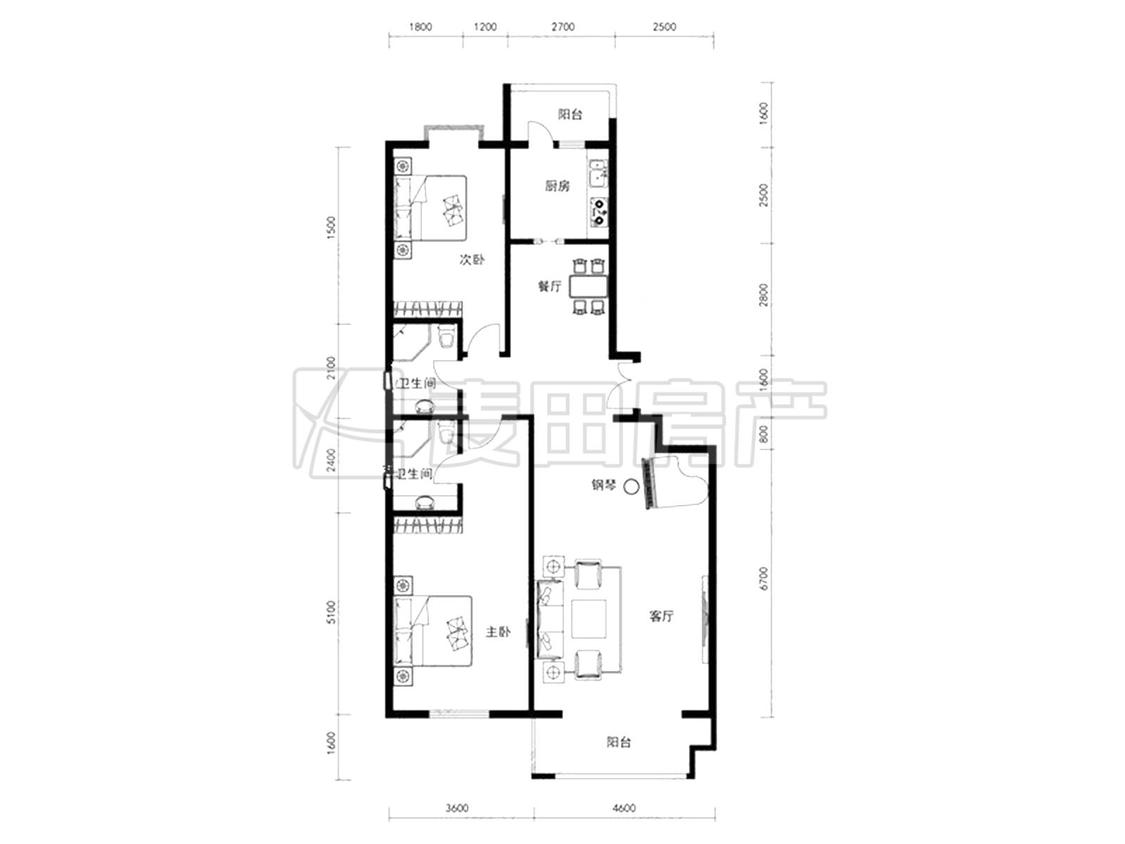
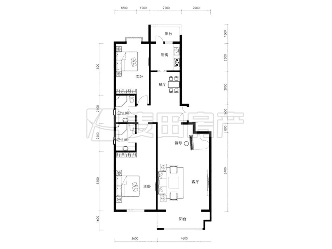
2室2厅 首开知语城

唯一住房
南北通透
有电梯
满五年
1120万
售价
2室2厅
房型
137.8平
建筑面积
麦田官方提供

周边配套

详情
位置
望京西路317号
交通
教育
医疗
生活
休闲
望京西(15号线)
804m
阜通(14号线)
1.1km
东湖渠(14号线)
2.1km

小区行情周报

详情
持平
咨询小区历史成交价
去咨询
免责声明:房源所示图片及其他信息仅供参考,购房时请以房本信息为准。图片、VR等房屋信息由房源发布机构发布,如有侵权等情况,请在房源展示图片右下侧点击“反馈”联系幸福里平台处理。幸福里平台禁止经纪人/咨询师“返佣返现”,请您警惕。反馈