选好房,就上幸福里找房
立即打开
VR
图片
1/17
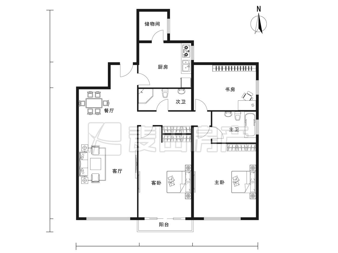
3室2厅 凤凰城(一期)
反馈
品质改善
唯一住房
有电梯
满五年
1420万
售价
3室2厅
房型
165平
建筑面积
单价
86060元/平
挂牌
2021-10-10
楼层
中楼层/共38层
朝向
东南
装修
精装修
电梯
有电梯
楼型
板塔结合
类型
住宅
权属
商品房
年代
2002年
小区
凤凰城(一期)(朝阳-太阳宫)
点评
所在小区3位业主分享真实入住感受
提示
签订正式租房/购房合同前切勿支付任何费用
麦田官方提供
关注房源动态,掌握一手信息
关注动态
周边配套
详情
位置
凤凰环路与曙光南路交叉路口南侧
交通
教育
医疗
生活
休闲
西坝河(西坝河南路1号一层)
1.1km
太阳宫(太阳宫中路凯德MALL太阳宫店北侧约30米)
1.3km
左家庄[地铁站](17号线北段)
1.5km
凤凰城(一期)
详情
小区行情周报
详情
持平
咨询小区历史成交价
去咨询
免责声明:房源所示图片及其他信息仅供参考,购房时请以房本信息为准。图片、VR等房屋信息由房源发布机构发布,如有侵权等情况,请在房源展示图片右下侧点击“反馈”联系幸福里找房平台处理。幸福里找房平台禁止经纪人/咨询师“返佣返现”,请您警惕。
反馈