省心挑好房,先上幸福里
立即打开
VR
图片
1/24
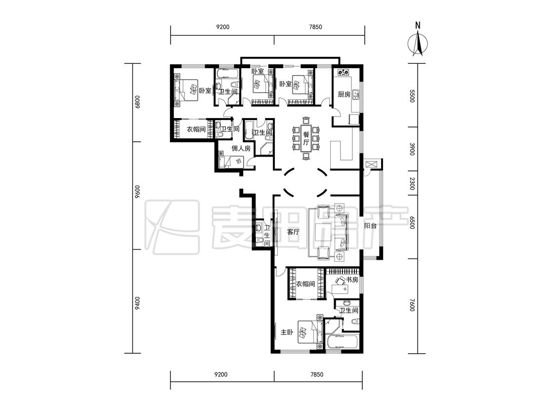
4室2厅 圣世一品
反馈
有电梯
临近地铁
临近学校
2600万
售价
4室2厅
房型
390.11平
建筑面积
单价
66647元/平
挂牌
2021-09-09
楼层
低楼层/共25层
朝向
东南北
装修
精装修
电梯
有电梯
楼型
板塔结合
类型
住宅
权属
商品房
年代
2010年
小区
圣世一品(朝阳-东大桥)
点评
所在小区12位业主分享真实入住感受
提示
签订正式租房/购房合同前切勿支付任何费用
麦田官方提供
关注房源动态,掌握一手信息
关注动态
周边配套
详情
位置
呼家楼地铁站E西北口步行230米
交通
教育
医疗
生活
休闲
呼家楼(呼家楼地铁站)
348m
东大桥(6号线)
670m
团结湖(东三环北路首北兆龙饭店东北侧约40米)
932m
圣世一品
详情
小区行情周报
详情
持平
咨询小区历史成交价
去咨询
小区实勘测评
详情
8.4
综合评分“良好”
区域价值
8.8
产品价值
8.0
配套价值
8.0
交易价值
9.0
1、圣世一品小区物业为北京金地格林物业管理有限公司,该物业公司安保系统完善,刷卡进小区、进单元门,小区内还装有24小时监控,全方位保障住户的安全。 2、小区住户以在周边CBD上班的人群居多,整体素质较高,邻里和谐,生活氛围浓厚。 3、小区内部休闲娱乐设施完善,有多处运动器材,还有儿童游乐设施,可满足不同年龄段不同的休闲娱乐需求。 4、小区距离团结湖公园较近,方便住户茶余饭后散步、休闲,是居民休闲娱乐的好去处。
免责声明:房源所示图片及其他信息仅供参考,购房时请以房本信息为准。图片、VR等房屋信息由房源发布机构发布,如有侵权等情况,请在房源展示图片右下侧点击“反馈”联系幸福里平台处理。幸福里平台禁止经纪人/咨询师“返佣返现”,请您警惕。
反馈