省心挑好房,先上幸福里
立即打开
VR
图片
1/30
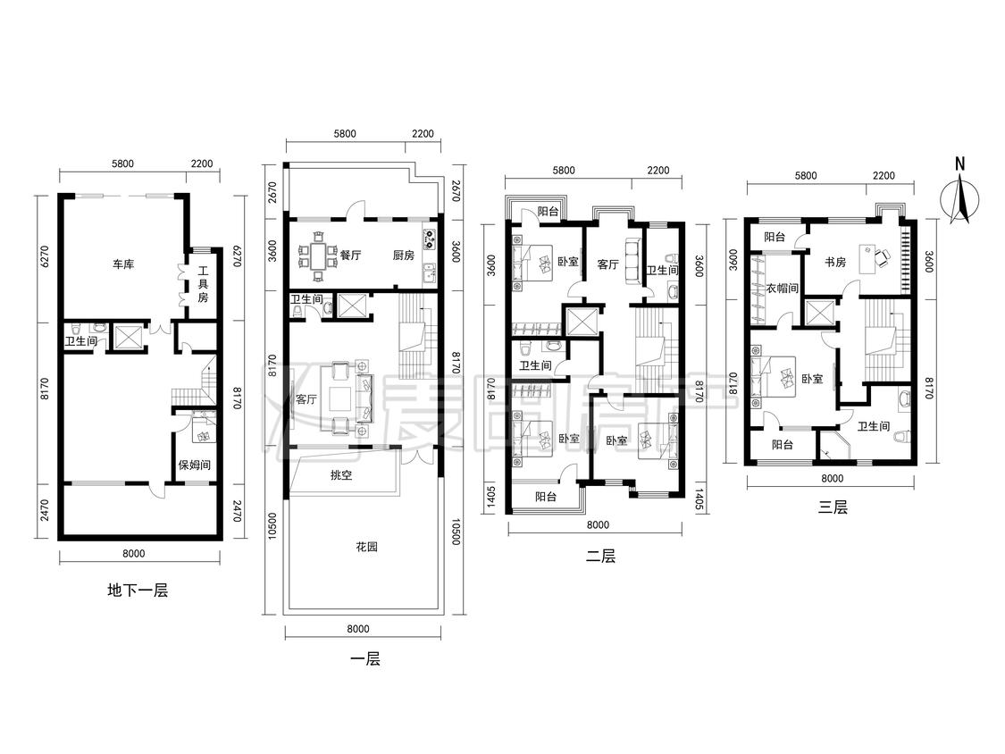
7室2厅 亚运新新家园(清花园)
反馈
南北通透
满五年
临近地铁
临近学校
3699万
售价
7室2厅
房型
402.21平
建筑面积
单价
91966元/平
挂牌
2021-08-30
楼层
低楼层/共1层
朝向
南北
装修
精装修
电梯
无电梯
楼型
板楼
类型
住宅
权属
商品房
年代
2005年
小区
亚运新新家园(清花园)(朝阳-亚运村)
提示
签订正式租房/购房合同前切勿支付任何费用
麦田官方提供
关注房源动态,掌握一手信息
关注动态
周边配套
详情
位置
亚运村小营-四至五环辛店路1号清花园
交通
教育
医疗
生活
休闲
关庄(15号线)
1.2km
大屯路东(5号线)
1.7km
望京西(15号线)
2.2km
亚运新新家园(清花园)
详情
小区行情周报
详情
持平
咨询小区历史成交价
去咨询
免责声明:房源所示图片及其他信息仅供参考,购房时请以房本信息为准。图片、VR等房屋信息由房源发布机构发布,如有侵权等情况,请在房源展示图片右下侧点击“反馈”联系幸福里平台处理。幸福里平台禁止经纪人/咨询师“返佣返现”,请您警惕。
反馈