省心挑好房,先上幸福里
立即打开
VR
图片
1/37
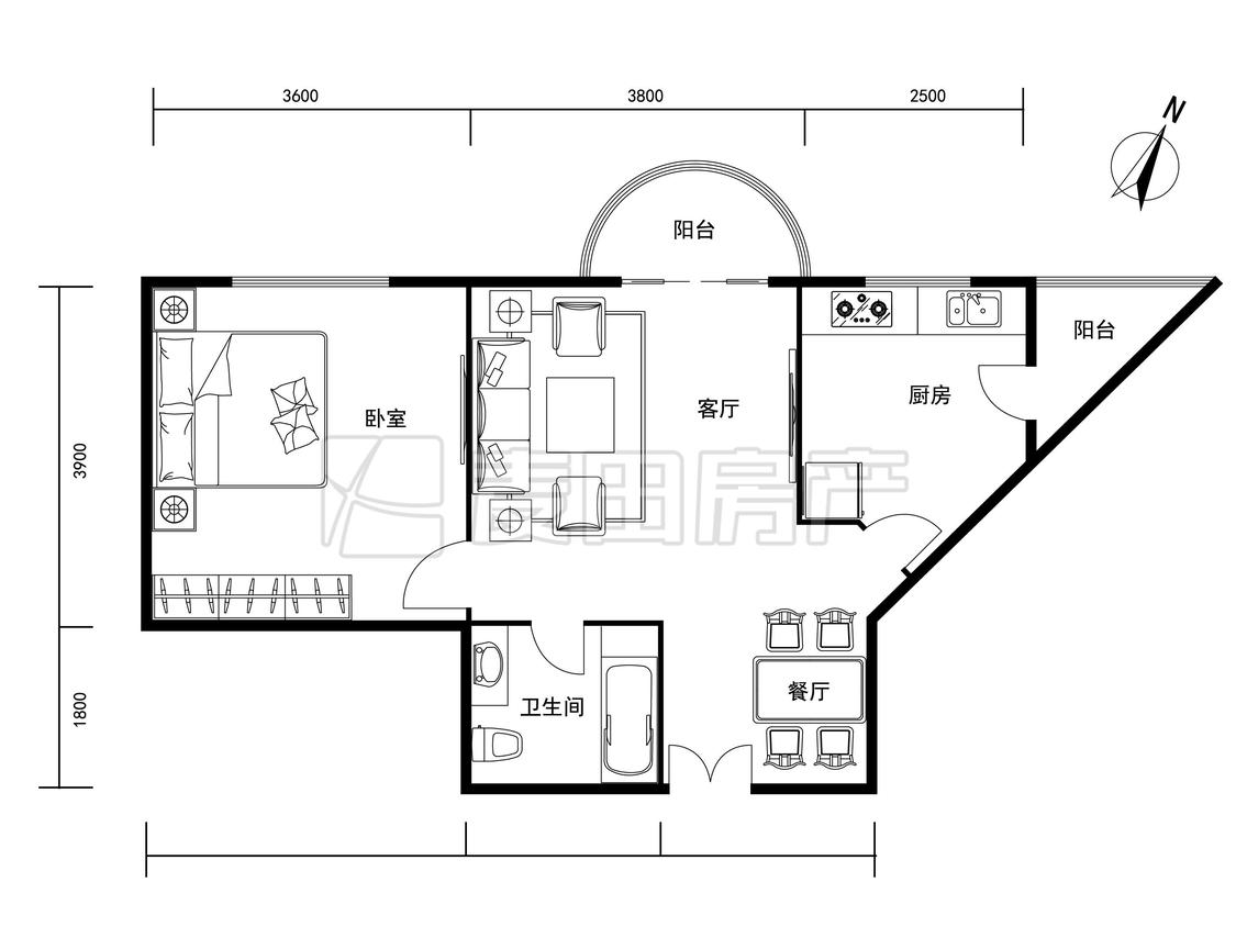
1室1厅 水星园
反馈
有电梯
满五年
临近地铁
临近学校
780万
售价
1室1厅
房型
62.43平
建筑面积
单价
124939元/平
挂牌
2021-07-12
楼层
中楼层/共23层
朝向
西北
装修
精装修
电梯
有电梯
楼型
板楼
类型
住宅
权属
经适房
年代
2006年
小区
水星园(朝阳-太阳宫)
点评
所在小区3位业主分享真实入住感受
提示
签订正式租房/购房合同前切勿支付任何费用
麦田官方提供
关注房源动态,掌握一手信息
关注动态
周边配套
详情
位置
太阳宫地铁站B出口东北方向步行460米
交通
教育
医疗
生活
休闲
太阳宫(太阳宫中路凯德MALL太阳宫店北侧约30米)
501m
西坝河(西坝河南路1号一层)
1.1km
芍药居(10号线)
1.6km
水星园
详情
小区行情周报
详情
持平
咨询小区历史成交价
去咨询
免责声明:房源所示图片及其他信息仅供参考,购房时请以房本信息为准。图片、VR等房屋信息由房源发布机构发布,如有侵权等情况,请在房源展示图片右下侧点击“反馈”联系幸福里平台处理。幸福里平台禁止经纪人/咨询师“返佣返现”,请您警惕。
反馈