省心挑好房,先上幸福里
立即打开
VR
图片
1/38
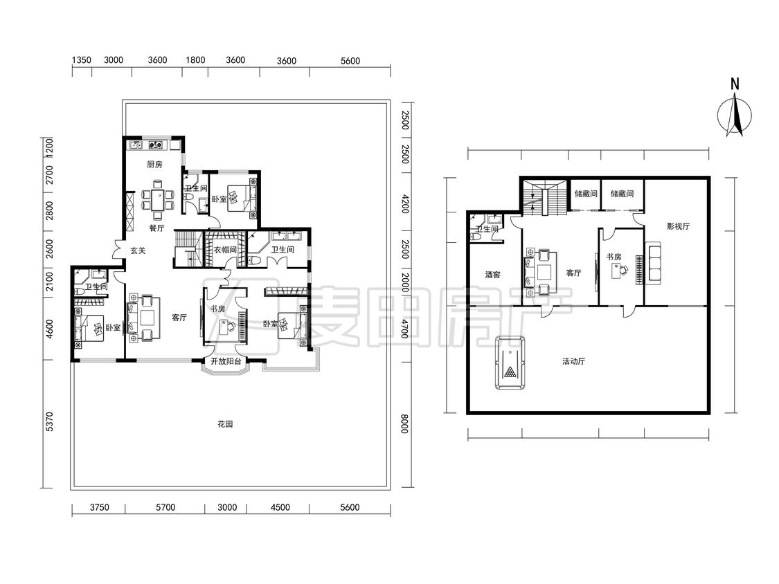
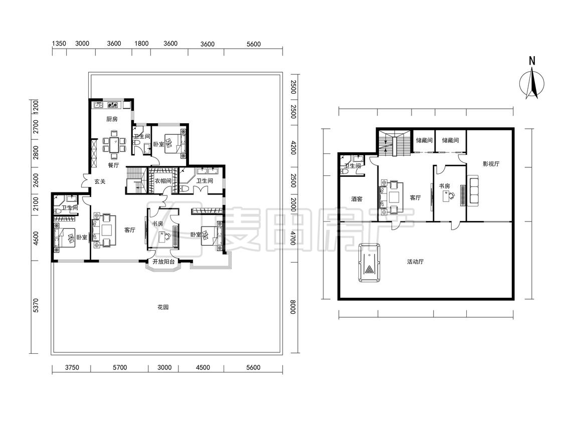
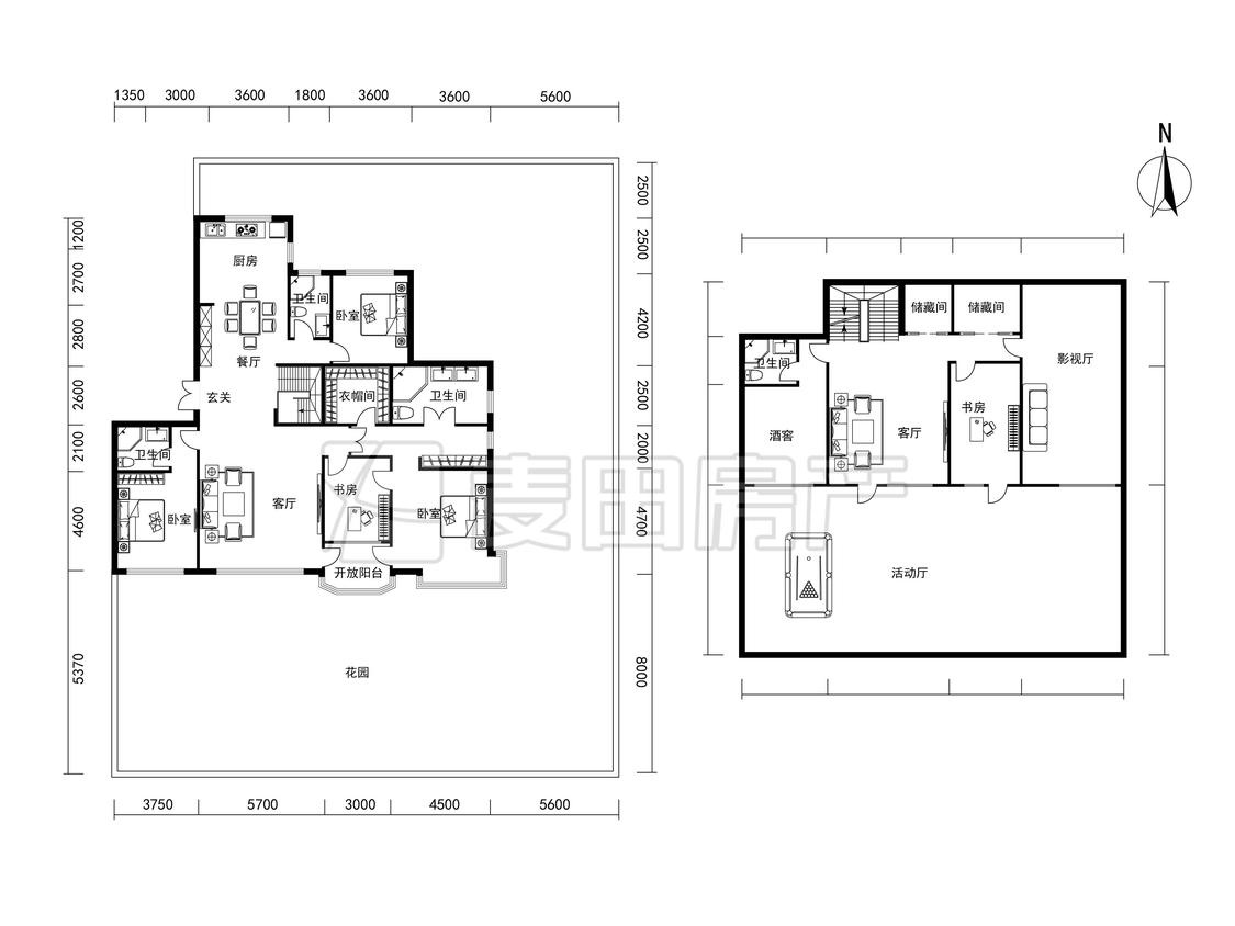
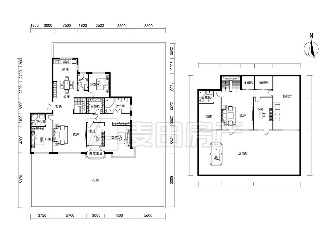
5室2厅 臻园
反馈
南北通透
有电梯
楼龄新
满两年
3600万
售价
5室2厅
房型
405.5平
建筑面积
单价
88779元/平
挂牌
2021-06-16
楼层
低楼层/共17层
朝向
南北
装修
精装修
电梯
有电梯
楼型
板楼
类型
住宅
权属
商品房
年代
2015年
小区
臻园(朝阳-来广营)
点评
所在小区3位业主分享真实入住感受
提示
签订正式租房/购房合同前切勿支付任何费用
麦田官方提供
关注房源动态,掌握一手信息
关注动态
周边配套
详情
位置
来广营西路
交通
教育
医疗
生活
休闲
来广营(14号线)
257m
东湖渠(14号线)
990m
善各庄(14号线)
1.5km
臻园
详情
小区行情周报
详情
持平
咨询小区历史成交价
去咨询
免责声明:房源所示图片及其他信息仅供参考,购房时请以房本信息为准。图片、VR等房屋信息由房源发布机构发布,如有侵权等情况,请在房源展示图片右下侧点击“反馈”联系幸福里平台处理。幸福里平台禁止经纪人/咨询师“返佣返现”,请您警惕。
反馈