选好房,就上幸福里找房
立即打开
1/16

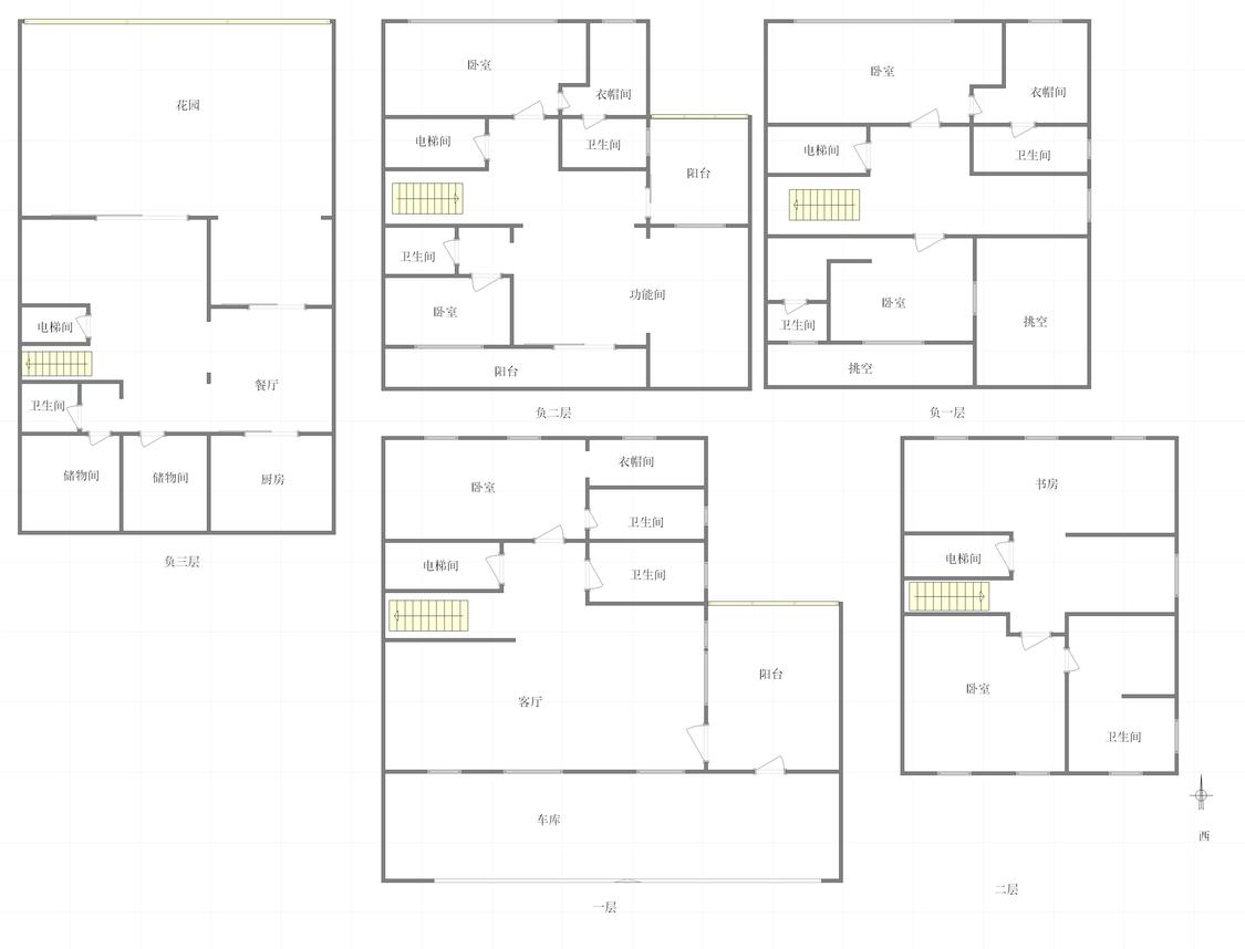
6室2厅 天景山院里

临近地铁
绿化率高
750万
售价
6室2厅
房型
214平
建筑面积
到家了官方提供

周边配套

详情
位置
学府大道69号
交通
教育
医疗
生活
休闲
重庆交通大学(3号线)
757m
八公里(渝南大道铠恩国际家居名都西北侧)
822m
六公里(学府大道渝能国际西南侧)
1.8km

小区行情周报

详情
持平
咨询小区历史成交价
去咨询
免责声明:房源所示图片及其他信息仅供参考,购房时请以房本信息为准。图片、VR等房屋信息由房源发布机构发布,如有侵权等情况,请在房源展示图片右下侧点击“反馈”联系幸福里找房平台处理。幸福里找房平台禁止经纪人/咨询师“返佣返现”,请您警惕。反馈