选好房,就上幸福里找房
立即打开
1/7
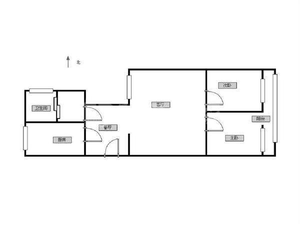
2室1厅 苏园小区
反馈
临近地铁
200万
售价
2室1厅
房型
87.3平
建筑面积
单价
22909元/平
挂牌
2019-11-03
楼层
低楼层/共6层
朝向
东西
装修
简装修
电梯
无电梯
楼型
板塔结合
类型
住宅
权属
商品房
年代
2002年
小区
苏园小区(房山-良乡)
点评
所在小区2位业主分享真实入住感受
提示
签订正式租房/购房合同前切勿支付任何费用
我爱我家官方提供
关注房源动态,掌握一手信息
关注动态
周边配套
详情
位置
良乡北关环岛向西
交通
教育
医疗
生活
休闲
苏庄(房山线)
522m
良乡南关(房山线)
1.5km
阎村东(房山线;燕房线)
2.0km
苏园小区
详情
小区行情周报
详情
持平
咨询小区历史成交价
去咨询
小区实勘测评
详情
8.5
综合评分“良好”
区域价值
6.8
产品价值
8.5
配套价值
8.5
交易价值
8.0
1、小区楼栋以板楼为主,且房屋多为南北朝向,采光通风条件好。 2、小区所在位置交通便利,距离地铁站和公交站都比较近,日常通勤十分方便. 3、小区内部配套成熟,不用出小区就可以满足业主日常生活需求,生活方便快捷。 4、小区均价低于良乡板块的平均价格,且主力户型多为小户型。。 5、小区物业费较低,降低了居住成本。
免责声明:房源所示图片及其他信息仅供参考,购房时请以房本信息为准。图片、VR等房屋信息由房源发布机构发布,如有侵权等情况,请在房源展示图片右下侧点击“反馈”联系幸福里找房平台处理。幸福里找房平台禁止经纪人/咨询师“返佣返现”,请您警惕。
反馈